Apartamento a la venta en 19667 Turnberry Way # 3E, Aventura FL 33180. MLS #A11503322
Detalles de la propiedad
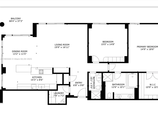
Experimenta el epítome de la opulencia en Turnberry Isle. Esta unidad excepcional cuenta con vistas cautivadoras de las aguas intracostales, el puerto deportivo y el océano. Sumérgete en la cocina recién renovada con electrodomésticos de alta calidad, baños totalmente renovados y ventanas y puertas de impacto. Valet sólo para aparcamiento para residentes e invitados. Disfrutarás del amplio armario principal personalizado y el balcón más grande del edificio. Disfruta de las comodidades de estilo resort, incluida una piscina pintoresca, un restaurante, un club, un centro de fitness, un concierge de 24 horas, aparcamiento cubierto, gimnasio, golf, terraza, y acceso independiente sin despertador / 80' Idealmente situado en la Marina, esta casa está ubicada a una cor
Características
Interior
Dormitorios y Baños
- Dormitorios: 2
- Baños: 2
- Baños completos: 2
Pisos
- Pisos: Parqué, Azulejos
Calefacción
- Características de calefacción: Central, Eléctrico
Enfriamiento
- Tiene enfriamiento: Sí
- Características de enfriamiento: Aire central, Eléctrico
Electrodomésticos
- Electrodomésticos incluidos: N/A
Otras características interiores
- Tour virtual: Enlace
Propiedad
Propiedad
- Características de la piscina: N/A
- Características exteriores: Balcón abierto, Pista(s) de tenis
- Detalles del patio y el porche: Open Balcony, Wrap Around
- Descripción de la vista: Bahía, Vista de la costa, Skyline, Vista a la pista de tenis
Otra información de la propiedad
- Número de parcela: 28-22-02-015-1080
- Adjunto a otra estructura: Sí
Construcción
Tipo y estilo
- Tipo de hogar: Condo 5+ Stories
Información del material
- Construcción: Construcción de bloques de concreto
Condición
- Año de construcción: 1980
Comunidad y vecindario
Ubicación
- Región: Aventura
HOA y financiamiento
HOA
- Tiene HOA: No
- Cuota de HOA: 1768
- Servicios incluidos: Muelle, Clubhouse-Clubroom, Ascensor(es), Sala de ejercicios, Iluminación exterior, Almacenamiento, Cocina, Marina, Piscina, Spa/Tina de hidromasaje, Pista(s) de tenis, Vertedero
Otra información financiera
- Compensación de la agencia del comprador: N/A
Propiedades relacionadas
825.000 US$
2 habitaciones, 2 baños, área de 1887 sqft
Apartamento tipo Condo en Turnberry Way, Aventura FL
Cod. Postal 33180
825.000 US$
2 habitaciones, 2 baños, área de 1887 sqft
Apartamento tipo Condo en Turnberry Way, Aventura FL
Cod. Postal 33180.0
850.000 US$
2 habitaciones, 2 baños, área de 1887 sqft
Apartamento tipo Condo en Turnberry Way, Aventura FL
Cod. Postal 33180
865.000 US$
2 habitaciones, 2 baños, área de 1825 sqft
Apartamento tipo Condo en Turnberry Way, Aventura FL
Cod. Postal 33180.0
870.000 US$
2 habitaciones, 2 baños, área de 1800 sqft
Apartamento tipo Condo en Country Club Dr, Aventura FL
Cod. Postal 33180.0
875.000 US$
2 habitaciones, 2 baños, área de 1825 sqft
Apartamento tipo Condo en Turnberry Way, Aventura FL
Cod. Postal 33180
Propiedades cercanas
775.000 US$
2 habitaciones, 2 baños, área de 1825 sqft
Apartamento tipo Condo en Turnberry Way, Aventura FL
Cod. Postal 33180
675.000 US$
2 habitaciones, 2 baños, área de 1887 sqft
Apartamento tipo Condo en Turnberry Way, Aventura FL
Cod. Postal 33180.0
850.000 US$
2 habitaciones, 2 baños, área de 1887 sqft
Apartamento tipo Condo en Turnberry Way, Aventura FL
Cod. Postal 33180
699.000 US$
2 habitaciones, 2 baños, área de 1904 sqft
Apartamento tipo Condo en Turnberry Way, Aventura FL
Cod. Postal 33180
689.000 US$
2 habitaciones, 2 baños,
Apartamento tipo Condo en Turnberry Way, Aventura FL
Cod. Postal 33180.0
795.000 US$
2 habitaciones, 2 baños, área de 1522 sqft
Apartamento tipo Condo en Turnberry Way, Aventura FL
Cod. Postal 33180
La información de IDX se proporciona exclusivamente para uso personal y no comercial, y no se puede utilizar para ningún otro propósito que no sea identificar propiedades potenciales que los consumidores puedan estar interesados en comprar. La información se considera confiable pero no está garantizada. La oferta de compensación del corredor de la lista se realiza solo a los participantes de la MLS donde se archiva la lista.
Invierte en Miami
Déjanos tus datos y recibe asesoría personalizada de cómo invertir en Miami









































